Interior Design Broadbeach, Albert Avenue
Living Room Concept 1
This lounge area promises to offer you the comfort, elegance, style, and relaxation you've been seeking. However, by accommodating your husband's suggestion to include a mattress under the bed, we anticipate potential issues related to height restrictions and the possible need for a supporting leg in the middle of your selected frame for added stability.
This lounge room offers the 'leather sofa bed' option, conveniently packaged in 3 boxes that should fit in the lift. Feel free to mix and match pieces from each board to suit your preferences. The overall aesthetic leans towards a more 'Urban' vibe.
Master Bedroom
The master bedroom color palette is once again designed with neutral tones in mind, creating a calming and versatile backdrop for the space. By incorporating elements that exude an urban vibe, such as the navy bedhead and coastal colors, we have added a touch of modernity to the room.
To enhance symmetry and balance, the bedside picture on the left will be duplicated on both sides of the bed, creating a cohesive and harmonious look. Additionally, we have included pendant lighting to showcase how it could further elevate the overall aesthetic and ambiance of the room.
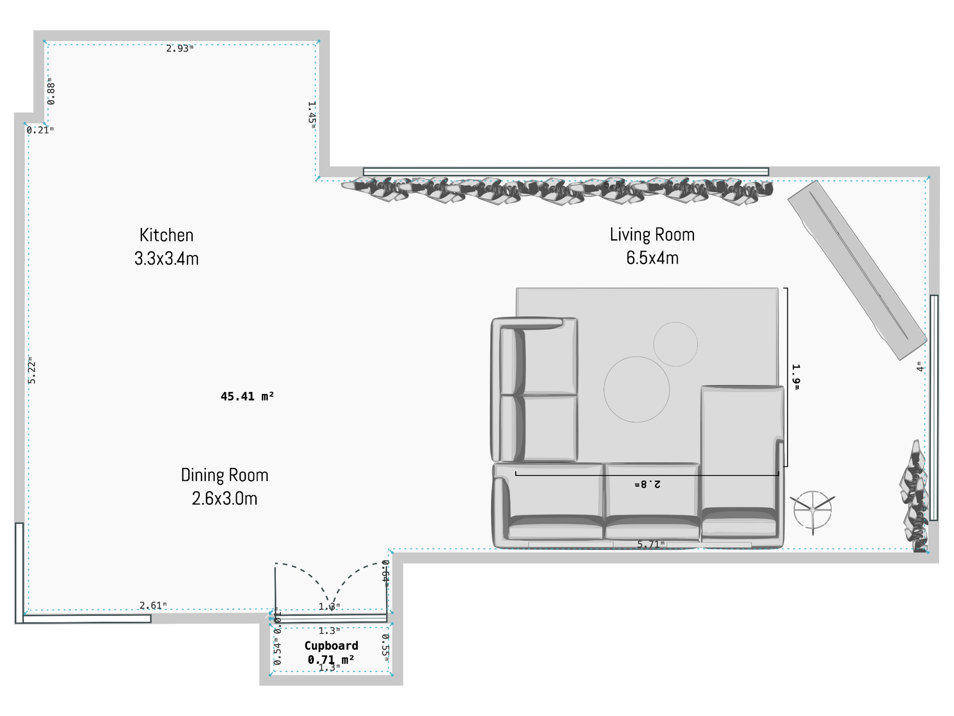
Dining Room Concept 1
Utilizing the available space effectively, we have maximized the seating area to ensure comfort and functionality. For a more detailed view of the layout, we recommend referring to the floorplan provided. The color scheme is predominantly neutral, accented with refreshing hints of blue to evoke a coastal ambiance. The choice of a darker rug not only adds a sophisticated touch but also ensures that the space stays looking pristine for future guests. To inject a touch of vibrancy, consider incorporating colorful dinnerware, glasses, and other accessories to enhance the overall aesthetic, especially if you are considering listing the space on Airbnb.
Bedroom 1
This bedroom effortlessly achieves a timeless and elegant aesthetic with its neutral color palette and chic design elements. The curved soft bedhead adds a touch of sophistication, complementing the overall serene ambiance of the room. Additionally, a subtle hint of Coastal style is introduced through the carefully selected artwork, which enhances the space and creates a harmonious balance between tranquility and charm. It truly captures the essence of your desired style and provides a welcoming and relaxing atmosphere for you to enjoy.
Master Bedroom
For the master bedroom we added a grey carpet and painted the panelling in the same colour as your walls.
We came up with a design based on your inspiration board. Because you already have the panelling on the wall we would suggest getting rid of the bedhead. You could use it in one of the bedrooms in the barn. Same goes for your bed side tables. Installing a floating shelf across the entire length of your wall adds interest and creates extra storage space.
By adding throw pillows and a throw you can layer the bed to give that more inviting feel.
The Barn Rumpus
We turned your rumpus room into a tv room and selected pieces that will match the furniture in the other rooms even better. We absolutely love the work that's already been put in this place and see amazing potential for it to be turned into a cosy barn accommodation.
We've added a tv unit that could be placed against the wall where you now have your sofa. Have the sofa facing the tv and place other items around accordingly. You could use your black & white console from the main house in here to go against the opposite wall.
Dressing Room
We included some pieces you could add to turn this room into a cosy dressing room. You could also introduce greenery by putting hanging plants in the wall opening.















